THE MANNON HOUSE

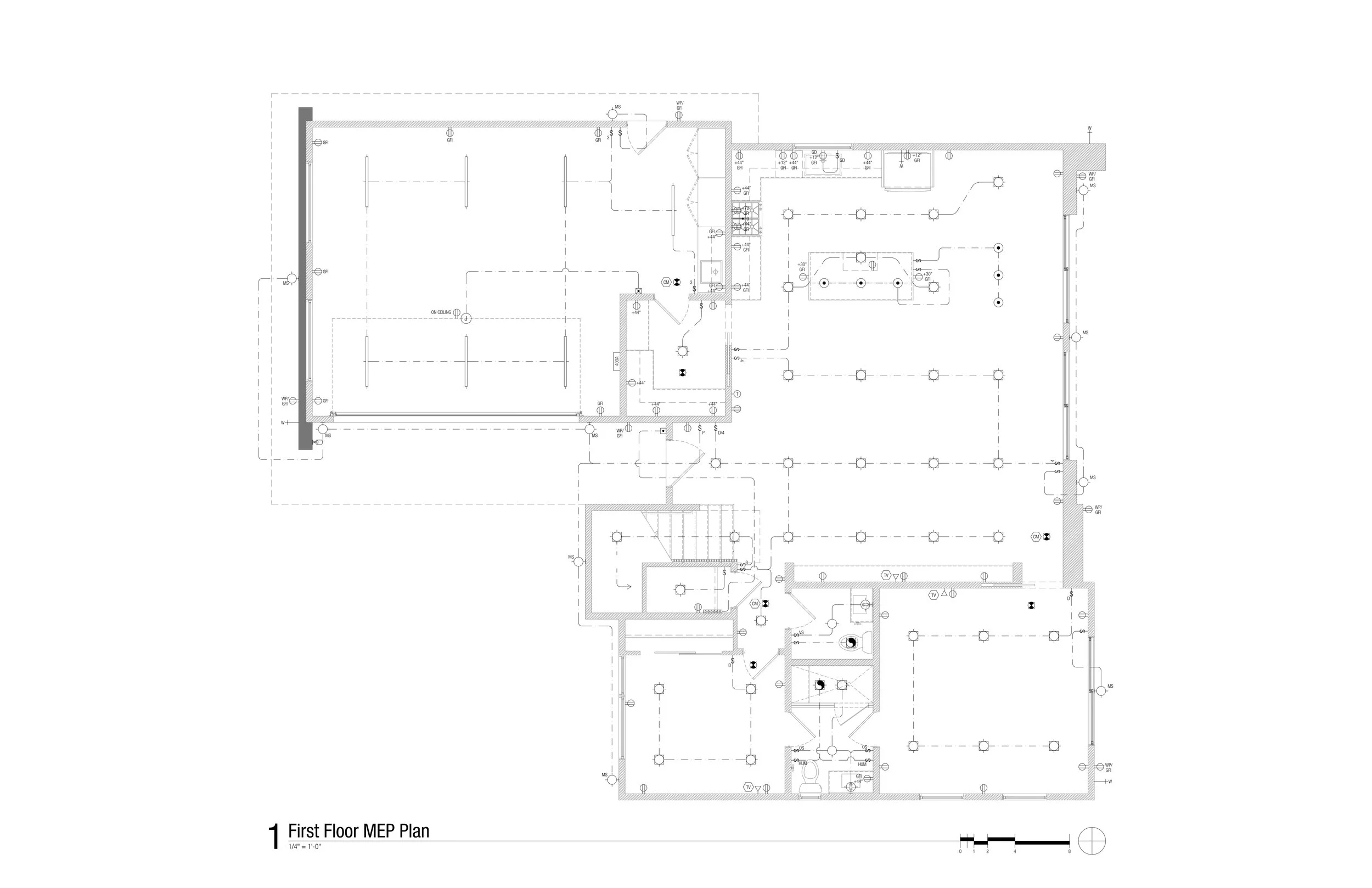
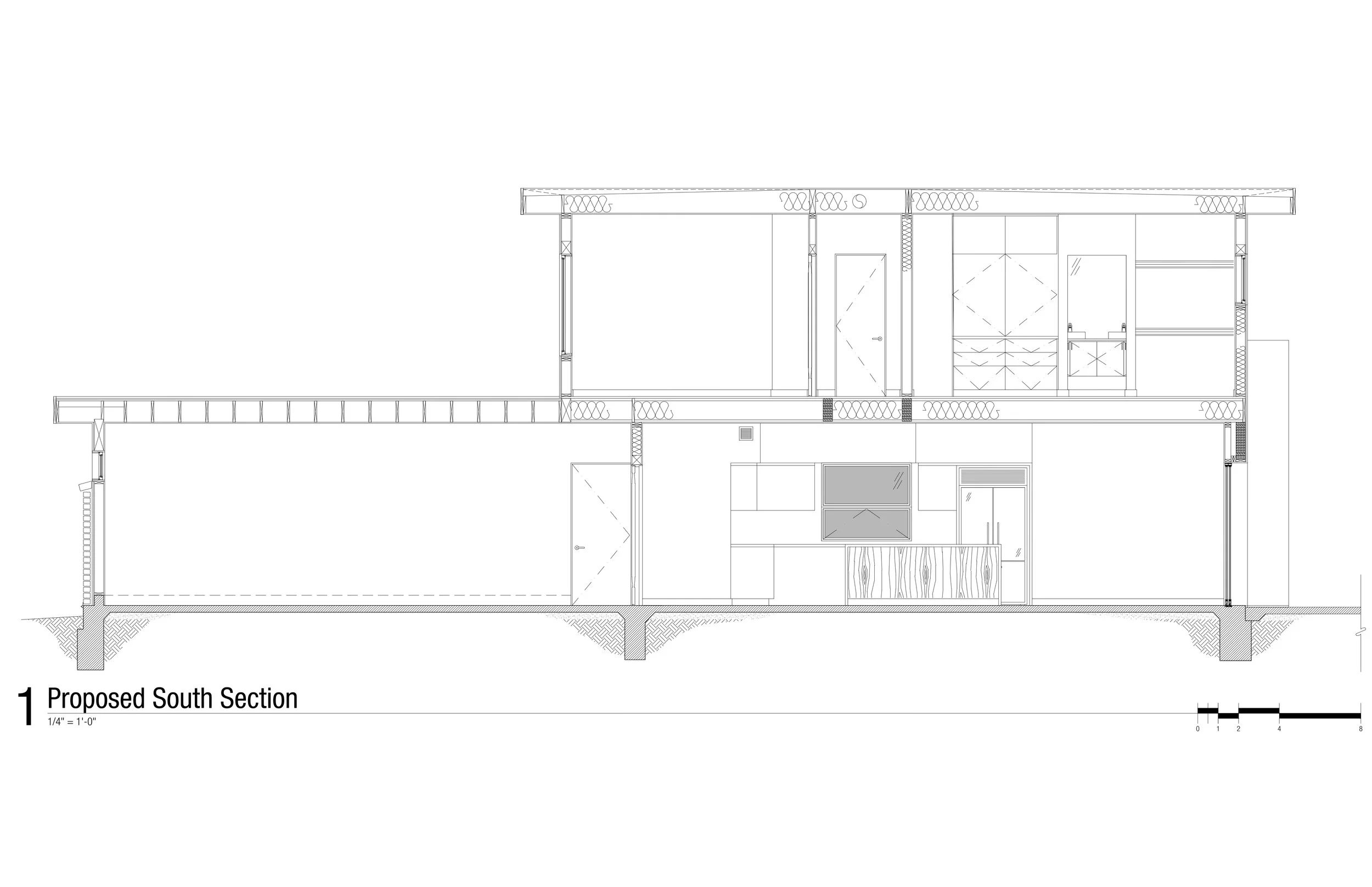
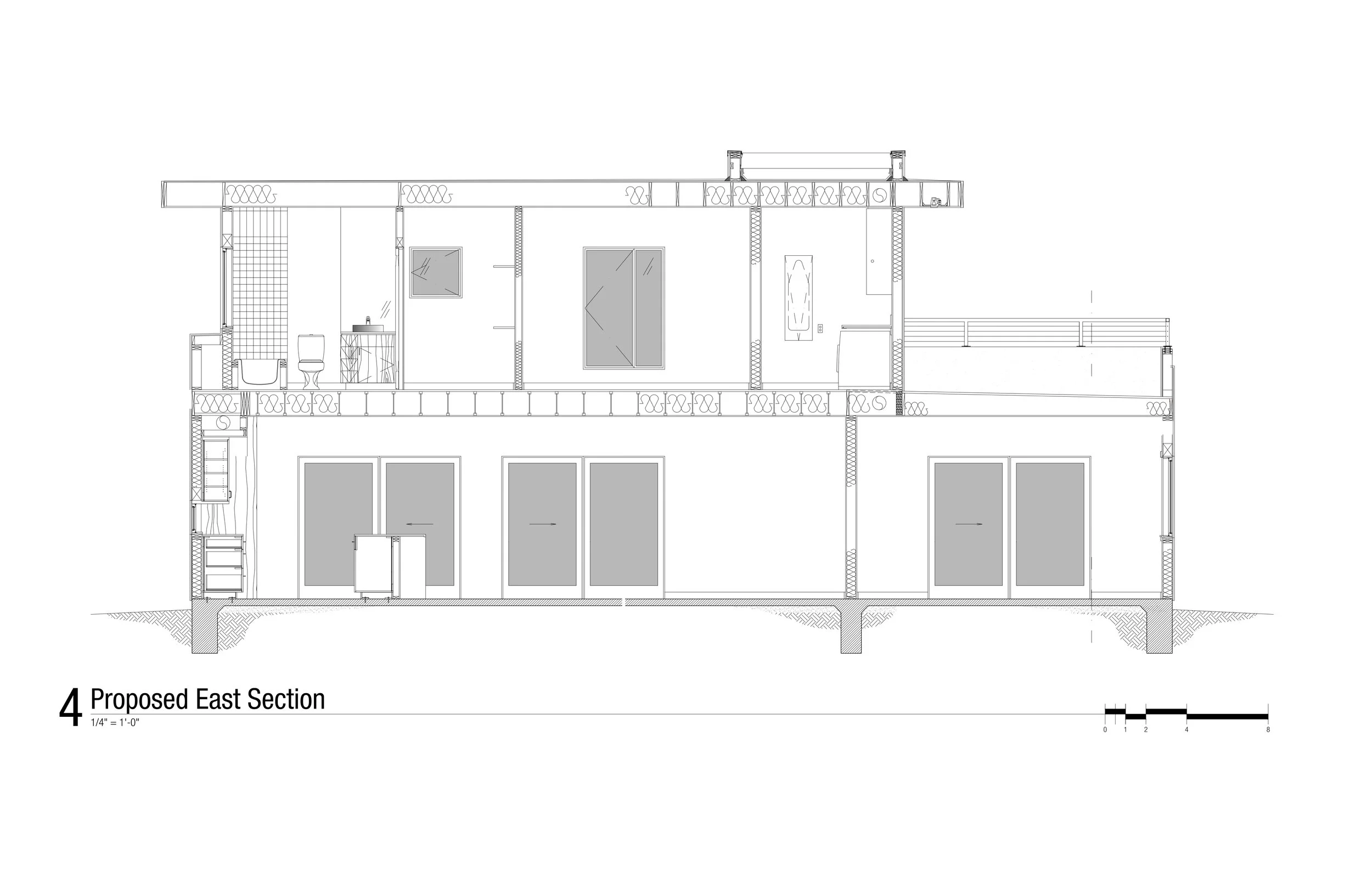
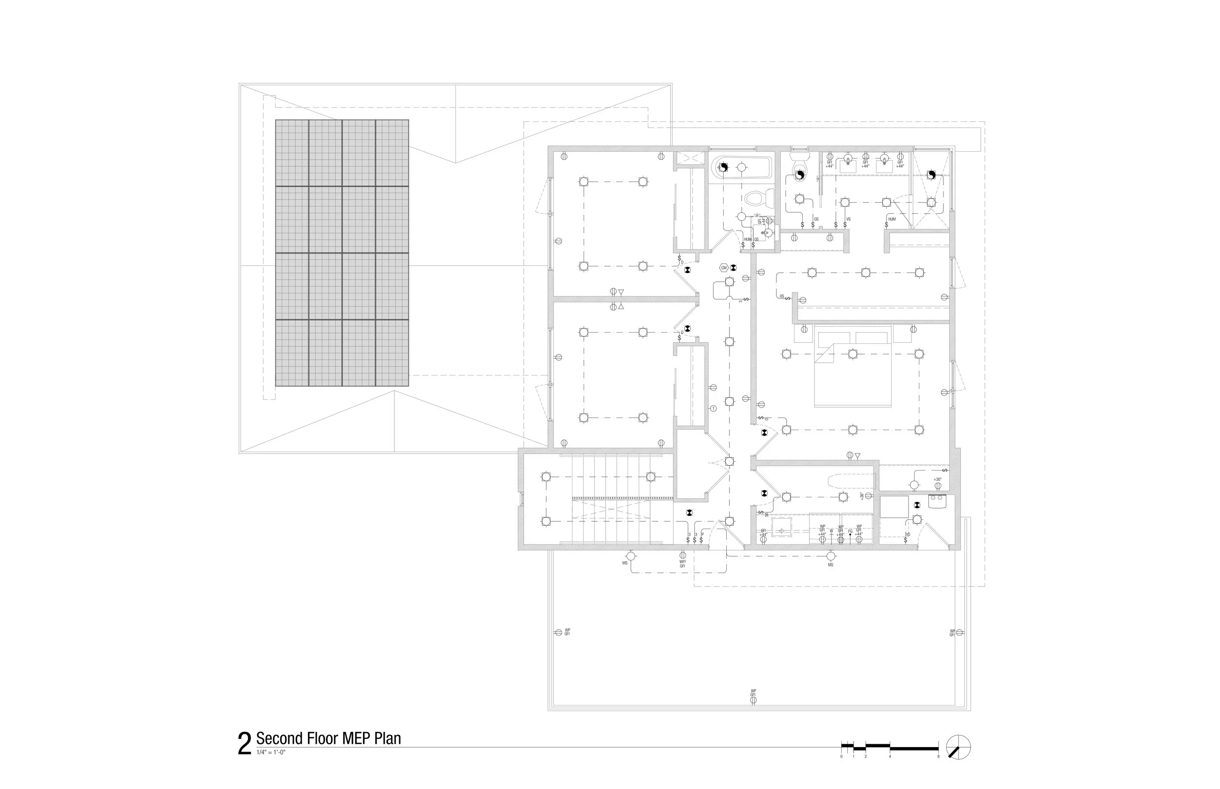
The Mannon house is a current project that I have developed for CWA Studios. Working alongside the client we came up with the design of this large modern home in Atascadero California. This five-bedroom four bathroom home has a layout that can suit a large family. It also includes a two-car garage, a large open kitchen, and a living room, as well as a laundry room. In addition, CWA designed an ADU that can be used for renting to other tenants. In this project, I developed and created the drawings and construction documents. The house is still under development and construction will begin by the middle of 2023.

The Mannon House

Previous
Previous

RELUI Real Estate Development

Next
Next

WIMMER ADU